REDEVELOPMENT in Wilmslow
Price: £625,000

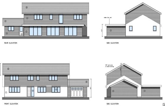
Plot Description
GREAT POTENTIAL FOR REDEVELOPMENT INTO 4 BED DETACHED FAMILY HOME
Subscribe today from £5 to see full details or register for Free and set up your email alerts.
Register | Subscribe | |
---|---|---|
Email alerts based on your own search criteria | ||
Advertise your own plot or property for FREE | ||
View full plot or property address | ||
View full description & plans | ||
View full agent contact details | ||
FREE tickets to all Homebuilding & Renovating Shows | ||
Register | Subscribe |
Sign up for our newsletters
OUR SPONSORS
Under Offer, Redevelopment Potential in Lymm
Search for Redevelopment in Church Green
Under Offer, Spacious Detached Dormer Bungalow. Great potential for major re-development
£590,000
Redevelopment Opportunity in Frodsham
An opportunity to acquire a former pub set in circa 0.3 acre which benefits from a pleasant rural as
£295,000