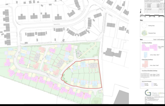
Development in Methwold

Price: £400,000

Development in Methwold photo

Plot Description

This PART-COMPLETED NEW HOME DEVELOPMENT

Subscribe today from £5 to see full details or register for Free and set up your email alerts.

Register Subscribe
Email alerts based on your own search criteria
Advertise your own plot or property for FREE
View full plot or property address
View full description & plans
View full agent contact details
FREE tickets to all Homebuilding & Renovating Shows
Register Subscribe

Sign up for our newsletters

OUR SPONSORS

 

Development in Downham Market

Exciting Development Opportunity

£160,000

Development Opportunity in Hilgay

DEVELOPMENT OPPORTUNITY ** A fantastic and rare opportunity

£625,000

Development Potential in Watton

Search for Development in Watton

Lovely 2 acre plot, Ideal for self build of your dream/eco home. Stpp

POA

Development Site in Caston

Search for Development in Caston

Attractive Village Location. Generous Plot Sizes

£495,000

Land for sale in South Wootton

0.2 acres which is ideal for builders or developers

£195,000

Residential development in Attleborough

The site extends to approximately 3.15 hectares (7.78 acres). It comprises part brownfield and part

POA

Development opportunity in Scarning

The bungalow is in reasonable state of repair but requires some modernisation

£850,000