Development Opportunity in East Yorkshire

Price: £450,000

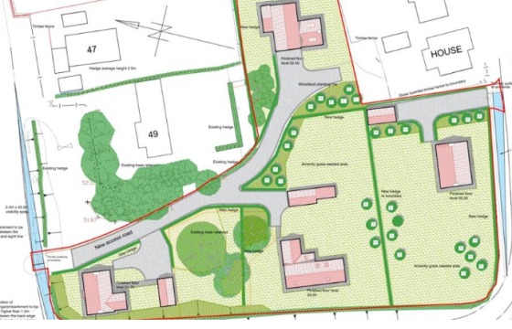
Development Opportunity in  East Yorkshire photo

Plot Description

Spanning a substantial plot, this development site benefits from a edge of village location surrounded by the natural beauty of the Yorkshire Wolds.

Subscribe today from £5 to see full details or register for Free and set up your email alerts.

Register Subscribe
Email alerts based on your own search criteria
Advertise your own plot or property for FREE
View full plot or property address
View full description & plans
View full agent contact details
FREE tickets to all Homebuilding & Renovating Shows
Register Subscribe

Sign up for our newsletters

OUR SPONSORS

 

Development Site in Hunmanby

A Freehold development site that is situated in the village of Hunmanby that is believed to be withi

£500,000

Development in Bilton

UNIQUE DEVELOPMENT OPPORTUNITY

£500,000