Self Build Plot in Abergavenny
Price: £160,000

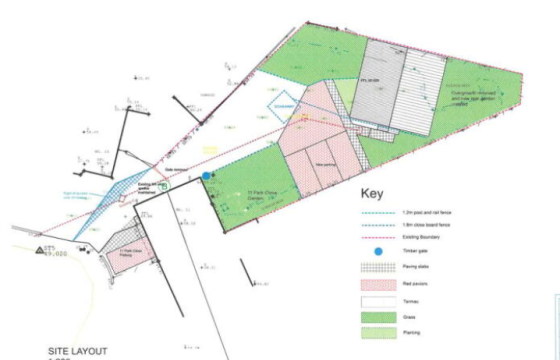
Plot Description
Individual Self-Build Building Plot
Subscribe today from £5 to see full details or register for Free and set up your email alerts.
Register | Subscribe | |
---|---|---|
Email alerts based on your own search criteria | ||
Advertise your own plot or property for FREE | ||
View full plot or property address | ||
View full description & plans | ||
View full agent contact details | ||
FREE tickets to all Homebuilding & Renovating Shows | ||
Register | Subscribe |
Sign up for our newsletters
OUR SPONSORS
Plot for sale in Blaina
Located on the Tanglewood estate we are exceptionally pleased to exclusively bring to the market a n
£87,500
Plot with PP for sale in Blaenau Gwent
Search for Plot with PP or Private Sale in Blaenau Gwent
3 bed detached house with integral garage and full planning permission approved
£79,950
Plot with PP for sale in Cwm
Search for Plot with PP or Private Sale in Cwm
Old stable/ boxing gym with planning permission granted for detached 2 bedroom, open plan property.
£50,000
UNDER OFFER Plot for sale in Monmouth
UNDER OFFER The site provides for two detached three-bedroom modern dwellings.
£300,000
Plot with PP for sale in Three Ashes
Search for Plot with PP or Custom Build in Three Ashes
Fantastic Plot with south facing views
£250,000
Plot for sale in Hereford
Self-build dormer bungalow scheme with flexibility to personalise.
£120,000
Plot for sale in Hereford
A freehold building plot with full planning consent for construction of a detached property in this
£150,000