Ideal Investment Opportunity in Swansea
Price: £40,000

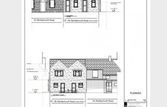
Plot Description
Existing Planning Permission Close to shops, schools and amenities Easy access from M4 Off Road Parking
Subscribe today from £5 to see full details or register for Free and set up your email alerts.
Register | Subscribe | |
---|---|---|
Email alerts based on your own search criteria | ||
Advertise your own plot or property for FREE | ||
View full plot or property address | ||
View full description & plans | ||
View full agent contact details | ||
FREE tickets to all Homebuilding & Renovating Shows | ||
Register | Subscribe |
Sign up for our newsletters