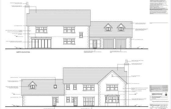
Land for sale in Allendale

Price: £195,000

Land for sale in Allendale photo

Plot Description

Construction of Substantial Detached Four Bedroom Family Home

Subscribe today from £5 to see full details or register for Free and set up your email alerts.

Register Subscribe
Email alerts based on your own search criteria
Advertise your own plot or property for FREE
View full plot or property address
View full description & plans
View full agent contact details
FREE tickets to all Homebuilding & Renovating Shows
Register Subscribe

Sign up for our newsletters

OUR SPONSORS

 

Land for sale in Haydon Bridge

PLANNING PERMISSION GRANTED FOR 6 DETACHED DWELLINGS IN TOTAL

£370,000

Land for sale in Hexham

For the construction of two self build single storey dwellings

POA

Land for sale in Bishop Auckland

Planning permission granted for a single property

£210,000

Land for sale in Brampton

A derelict detached Country Cottage with outbuildings and approximately 14 acres

£140,000

PLANNING PERMISSION in County Durham

PLOT OF LAND WITH PLANNING PERMISSION

£400,000

Plot for sale in Stamfordham

FANTASTIC DEVELOPMENT OPPORTUNITY

£300,000

Land for sale in Bishop Auckland

An opportunity to purchase a building plot centrally located

£220,000

Building Plot in Rowlands Gill

An individual building plot available with planning permission

£70,000

Building Plot in Rowlands Gill

An individual building plot available with planning permission

£80,000

Plot with PP for sale in Highfield

Search for Plot with PP or Custom Build or Eco in Highfield

13 separate plots for sale. With a further plot with outline permission for 5 townhouses and 12 apa

£100,000