Development opportunity in Padstow
Price: £495,000
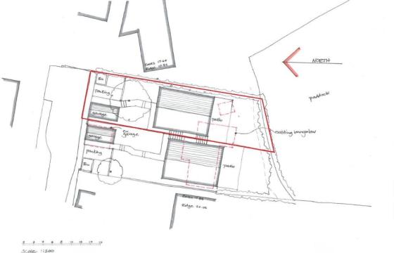
Plot Description
BUILDING PLOT - SUBJECT TO PLANNING PERMISSION
Subscribe today from £5 to see full details or register for Free and set up your email alerts.
| Register | Subscribe | |
|---|---|---|
| Email alerts based on your own search criteria | ||
| Advertise your own plot or property for FREE | ||
| View full plot or property address | ||
| View full description & plans | ||
| View full agent contact details | ||
| FREE tickets to all Homebuilding & Renovating Shows | ||
| Register | Subscribe |
Sign up for our newsletters
OUR SPONSORS
Development in Wadebridge
Fantastic opportunity to purchase a development site in the centre of rock.
£1,800,000
Development for sale in Delabole
Search for Development in Delabole
Development Opportunity: Prime 14-Acre Site in Delabole, Cornwall - OFFERS INVITED An exceptional o
POA