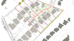
A PRESTIGIOUS DEVELOPMENT FOR SALE in Rochdale

A PRESTIGIOUS DEVELOPMENT FOR SALE

£2,100,000

Plot for sale in Bury

Search for Plot with PP in Greenmount

This would be an ideal project for a builder/developer or a cash buyer.

£600,000

Plot for sale in Kearsley

A parcel of land occupying a corner plot in this residential street

£100,000

Conversion for sale in Eagley Bank

Search for Conversion or Period Property or Private Sale in Eagley Bank

Eagley Bank. Coach house and stable with clock tower

£300,000

Land - No PP for sale in Haggate

Search for Land - No PP in Haggate

DEVELOPMENT OPPURTUNITY

£80,000

Conversion for sale in Dunscar

Search for Conversion or Period Property or Private Sale in Dunscar

A 1960s barn conversion with 3 bedrooms and one bathroom. Comes with large hay barn and 5 stables

£650,000

Land for Sale in Farnworth, Bolton

Search for Plot with PP in New Bury

Building Plot With Outline Planning Permission, 1 Pair of Semi Detached Houses

£55,000

Filter Your Search

OUR SPONSORS