Plot with PP for sale in Bourne End

Search for Plot with PP in Cores End

Fantastic opportunity for a self build project. Planning permission has been granted to demolish and

£800,000

Plot with PP for sale in Bourne End

Search for Plot with PP or Private Sale in Bourne End

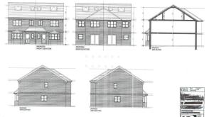
Greenbelt site with permission for 4 bed single dwelling

£995,000

Plot with PP for sale in Bourne End

Search for Plot with PP in Well End

Exceptional self-build opportunity with full planning consent for a stunning ’architectural masterpi

£1,000,000

Plot for sale in

This opportunity is Ideal for someone looking to develop their dream home

£580,000

Plot for sale in Beaconsfield

A rare opportunity to purchase a fantastic 0.3 acre plot

£1,950,000

Plot of land in Slough

Full planning permission for a stunning five-bedroom detached residence

£2,000,000

Plot with PP for sale in Hedgerley

Search for Plot with PP or Private Sale or Shared Investment in Hedgerley

Land for sale with planning permission in Stoke Poges. Open to offers in the region of £800,000.

£800,000

Plot with PP for sale in Jordans

Search for Plot with PP in Jordans

Plot with planning, Chalfont St Giles

£1,200,000

Filter Your Search

OUR SPONSORS