Development Opportunity in Littleborough

Price: £635,000

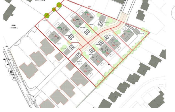
Development Opportunity in Littleborough photo

Plot Description

An exceptional boutique development of just nine architect-designed homes

Subscribe today from £5 to see full details or register for Free and set up your email alerts.

Register Subscribe
Email alerts based on your own search criteria
Advertise your own plot or property for FREE
View full plot or property address
View full description & plans
View full agent contact details
FREE tickets to all Homebuilding & Renovating Shows
Register Subscribe

Sign up for our newsletters

OUR SPONSORS

 

Building Plots in Copley

Building Land with Full Planning Permission. Views Over Norland Hillside.

£600,000

Development Opportunity in Sowerby Bridge

A rare development opportunity to the market. High levels of interest are anticipated on this very c

£580,000

Development opportunity in TODMORDEN

Search for Development in Gauxholme

Potential for circa 40 dwellings.

£1,000,000

Proposed Development in Bacup

Proposed Development of 6 New Dwellings

£300,000

A PRESTIGIOUS DEVELOPMENT FOR SALE in Rochdale

A PRESTIGIOUS DEVELOPMENT FOR SALE

£2,100,000

Plot for sale in Bacup

Reduced for Quick Sale - Land with Planning In Principle

£625,000

Development in Wheatley

EXCITING DEVELOPMENT OPPORTUNITY - OUTLINE PLANNING PERMISSION HAS LAPSED

£975,000

Development in Rossendale

DEVELOPMENT SITE FOR 8 DETACHED HOUSES

£800,000

Development for sale in Guide Bridge

Search for Development or Private Sale in Guide Bridge

61 stockport road,Ashton under lyne Ol70le

£595,000

Land for sale in Rossendale

Search for Development in Helmcroft

Excellent Freehold site. The site is currently vacant and undeveloped.

POA

Development for sale in Bradford

Planning permission for the construction of 51 dwellings

POA