Land for sale in Radcliffe-On-Trent

Price: £125,000

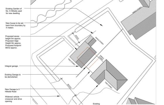
Land for sale in Radcliffe-On-Trent photo

Plot Description

Outline planning permission for the construction of a two-storey detached dwelling

Subscribe today from £5 to see full details or register for Free and set up your email alerts.

Register Subscribe
Email alerts based on your own search criteria
Advertise your own plot or property for FREE
View full plot or property address
View full description & plans
View full agent contact details
FREE tickets to all Homebuilding & Renovating Shows
Register Subscribe

Sign up for our newsletters

OUR SPONSORS

 

2748 Renovation for sale in Burton Joyce,

Search for Plot with PP in Gedling

2748 A renovation project with pp to construct a single storey contemporary dwelling

£600,000

Ref 2834: Plot for sale in Burton Joyce

Plot of land for sale with pp for a detached property

£295,000

Land for sale in West Bridgford

Construction of 2 x 4 bedroom detached dwellings

£435,000

Land for sale in Mapperley

Proposed building plot - Approximately 579 sq. metres

£275,000

Ref 2762. Land for sale in Nottingham

Search for Plot with PP in Carrington

Ref 2762. Planning permission granted for 2 storey 5 bed dwelling

POA

Plot with PP for sale in Radford

Search for Plot with PP or Services on Site or Eco in Radford

Buon Cleaning is committed to Excellence in Cleaning Services across Nottinghamshire. Our experience

£100,000

Plot for sale in Burton Joyce

The total plot extends to around 849 sq m and would be perfect for those looking to commission a bes

£250,000

Building Plot in Barnstone

** INDIVIDUAL BUILDING PLOT ** EDGE OF VILLAGE LOCATION ** APPROX. 0.3 OF AN ACRE **

£375,000

Walled Garden Plot for sale in Bleasby

A unique individual level building plot in a walled garden setting in the grounds of West Hall

£275,000

Ref 2873: Development opportunity in Nottingham

A residential development opportunity with outline pp for a 4 bed detached dwelling.

£180,000

Building Plot in Gotham

Building plot with Full planning permission

£525,000