Land for sale in Gwynedd

Price: £130,000

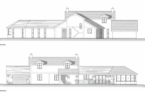
Land for sale in Gwynedd photo

Plot Description

An opportunity to build your own home located in the countryside with magnificent views across open country. The total area is approximately half an acre.

Subscribe today from £5 to see full details or register for Free and set up your email alerts.

Register Subscribe
Email alerts based on your own search criteria
Advertise your own plot or property for FREE
View full plot or property address
View full description & plans
View full agent contact details
FREE tickets to all Homebuilding & Renovating Shows
Register Subscribe

Sign up for our newsletters

OUR SPONSORS

 

Building Plot in Criccieth

This is a rare opportunity to build your dream home, overlooking the coastal town of Criccieth

£168,000

Land for sale in Caernarfon

Search for Plot with PP in Bro Rhythallt

Building plot located in the popular residential village of Llanrug

£75,000

Plot with Planning in Rhosneigr

Build your Dream Home.

£475,000

Land for sale in PWLLHELI

This will be a 3 bed detached bungalow

£125,000

Plot with PP for sale in Bwlchtocyn

Search for Plot with PP in Bwlchtocyn

Plot with PP for sale in Bwlchtocyn

£650,000