Plot with PP for sale in Norton Canes

Search for Plot with PP in Norton Canes

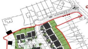
Plot for 5 three bedroom homes

£425,000

Plot with PP for sale in Wimblebury

Search for Plot with PP or Private Sale or Custom Build in Wimblebury

As viewers will have seen, we had a house AND a plot for sale a few weeks ago but we have received a

£170,000

House & Land in Burntwood

Option to buy House only or House and Land together

£400,000

BUILDING PLOTS in Cannock

Search for Plot with PP in Cannock

BUILDING PLOTS ** THREE UNITS

£140,000

Plot with Planning in Walsall

Contempory Residential Development Opportunity

£250,000

Development in Featherstone

Planning permission secured for 3 additional dwellings

POA

Land - No PP for sale in Little Hay

Search for Land - No PP or Private Sale in Little Hay

Plot 4, Little Hay Lane, Lichfield

£45,000

Land - No PP for sale in Little Hay

Search for Land - No PP or Private Sale in Little Hay

Plot 3, Little Hay Lane, Lichfield

£45,000

Filter Your Search

OUR SPONSORS