Land for sale in Llanddewi'r Cwm, Powys - Powys, Wales (Other Settlement)
Development opportunity for sale in Brecon, Powys
Search for Development in Boughrood
Development opportunity with planning consent for 15 houses
£500,000
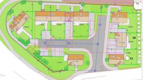
Development in Boughrood
Search for Development in Boughrood
An excellent level, broadly rectangular development site of approximately 1.5 acres in an attractive
£500,000
Development Opportunity in Powys
Development Opportunity - Mixed Residential - Situated In Llandrindod Wells
£795,000
Development in Kington
Development area 2.4 acres - Overall site approximately 6 acres - With open plan green areas
£750,000
Development Site in Talgarth
Search for Development in Talgarth
An attractive small development site with consent for 8 houses (incl. 3 affordable units) in a promi
POA
Development in Rhayader
Search for Development in Rhayader
An exciting opportunity to acquire 2.5 acres or thereabouts of prime residential development land
£800,000
Development in Powys
Search for Development in Sennybridge
An exciting green field development opportunity in a village setting some 9 miles from the market to
£695,000
Land for sale in Brecon, Powys
Search for Development in Sennybridge
The site is 3.29 acres and has the benefit of planning permission for a residential development of 5
£695,000