Land for sale in Knighton Fields, City of Leicester, East Midlands, England (Suburban Area)
Under Offer, Plot with PP for sale in Rowley Fields
Search for Plot with PP in Rowley Fields
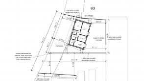
Under Offer, *** SUPERBLY POSITIONED BUILDING PLOT IN THE HIGHLY DESIRABLE LOCATION OFF NARBOROUGH R
£150,000
Land for sale in Great Glen
Rare chance to design and build a bespoke home tailored entirely to your own specification
£425,000
Plot with PP for sale in Sutton in the Elms
Search for Plot with PP or Private Sale or Custom Build in Sutton in the Elms
Three self build plots with outline permission. Postcode LE9 6QF
£530,000
Plot with PP for sale in Sutton in the Elms
Search for Plot with PP or Private Sale or Custom Build in Sutton in the Elms
Serviced plot with outline planning for self build house. One of 9 plots, with 6 already sold. Postc
£195,000
Plot with PP for sale in Kibworth Beauchamp
Search for Plot with PP or Private Sale in Kibworth Beauchamp
Lovely plot in a very sort after village
£155,000
Development in Desford
A bespoke architect designed building plot Situated in the sought after Leicestershire village of De
£350,000
Land for sale in Desford
Full planning permission for the erection of a detached contemporary family home
£230,000
Redevelopment for sale in Thrussington
Search for Redevelopment or Private Sale or Conservation Area in Thrussington
Great Investment Commercial Property with Residential approval
£305,000