Land for sale in Stewarton, East Ayrshire, Scotland (Town)
Land for sale in Stewarton
Search for Plot with PP in Fullwood
A unique opportunity to purchase one of two substantial building plot
£185,000
Plot with PP for sale in Onthank
Search for Plot with PP or Private Sale in Onthank
5 Plots with planning
£125,000
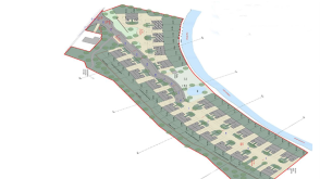
Land for Development in Cunninghamhead
An exceptional opportunity to acquire a prime development site
£300,000
Under Offer - Plot of Land for sale in Beith
Under Offer - A fantastic building plot in the popular area of Hessilhead, with planning permission
£140,000
Plot with PP for sale in Riccarton
Search for Plot with PP or Private Sale in Riccarton
storey and a half detached dwelling house Plot 1 Craigie Road Kilmarnock East Ayrshire Ka1 4eb
£75,000
Plot with PP for sale in Riccarton
Search for Plot with PP or Private Sale in Riccarton
plot for sale
£75,000
Plot with PP for sale in Longbar
Search for Plot with PP or Private Sale in Longbar
Building plot for sale
£65,000
Multiple Plot for sale in Galston
Search for Multiple Plot or Private Sale or Services on Site in Galston
A small development in Galston, East Ayrshire. Offer Invited
POA